Schüco Al prozori AWS

Trocal 88+ Passive hous

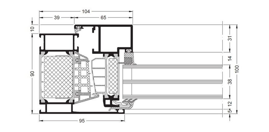
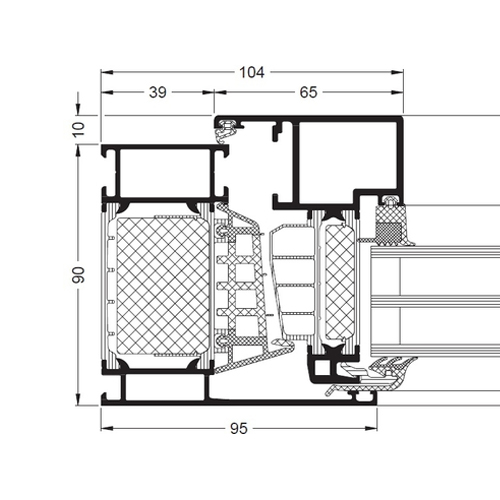
Schüco AWS 90 BS.SI +

U prozorskih sistema Schuco sa dubinom od 90 mm kombinuju prednosti aluminijuma kao materijala sa visokom toplotnom izolacijom za dizajn orijentisan, održive arhitekture
Schuco AVS 90 BS.SI + može biti zbog uskih lica širina i skrivena krila skladno aluminijumskih blokova prozorskih rešenja u jedno kao dvokriolno realizirano - u širini lica od 95 mm, čak i na pasivne kuće standardno.
Inovativna, održiv i izvodljiv za budućnost - spreman za serijske proizvodnje prozorske generacije Schuco AVS 90.SI + Green donosi i značajne količine obnovljivih sirovina u proizvodnju, kao pene i zaptivke: koje na primer, poboljuavaju zaštitu životne sredine, fosilna goriva zamenski materijala ricinusovo ulje u poliamidnih izolacionih šipki.

Detalji

◘ ispunjava složene uslove za maksimalnu toplotnu izolaciju održive arhitekture
U osnovnom dubina 90 mm, Schuco nudi sveobuhvatan prozor kit, uključujući nove pasivne kuće sertifikata. Njegovo visoko toplotno izolovana Schuco AVS serija 90.SI +, Schuco AVS 90.SI + zelena i Schuco 90 BS.SI + predstavlja savršenu kombinaciju izgradnje fizičke zahteve s najvećom mogućom prostora za arhitektonsko projektovanje.

SISTEM / MATERIJAL - aluminijum

ENERGIJA - pogodna za pasivne kuće

Dizajn / DESIGN - blok sistem

KARAKTERISTIKE:
◘ povećana bezbednost
◘ decentralizovana ventilacija
◘ ukupna dubina - 90 mm
◘ Min . širina vidljiva - 77 mm
◘ Uf vrednost ( > = ) - 0.85
◘ Najviša . Debljina stakla - 58 mm
◘ Vrsta Otvaranje - na unutra
◘ Zvuk indeks smanjenje [ dB ] - 42
◘ propustljivost vazduha - klasa 4
◘ vodonepropustljivost - 9A
◘ provala - RC ​​2
◘ Otpornost na opterećenje vetra - C5 / B5

SI (super insulation) profili

Profil