SI (super insulation) profili odgovaraju najstrožijim odredbama o uštedi energije, te se po izolacijskim svojstvima mogu mjeriti sa PVC 5-o komornim profilima i prikladni su za ugradnju u niskoenergetske objekte.
Zahvaljujući inovativnim prekinutim toplotnim mostovima i višekomornoj središnjoj brtvi sa pjenastom jezgrom, ispunjava najviše zahtjeve u pogledu toplotne zaštite s koeficijentom prolaza toplote kroz profil od samo Uf=1,4 W/m2K.
Standard
DIN EN ISO 10077-2
DIN EN 20140
DIN V ENV 1627
DIN EN 12208
DIN EN 12207
DIN EN 12210
Vrijednost
Uf=1.6W/m2K
do SSK5
WK3
Klasa 9a
Klasa 4
Klasa C5/B5
Test
Termička izolacija
Smanjenje buke
Protuprovalnost
Vodonepropustivost
Permeabilnost zraka
Otpornost na vjetar
Detalji
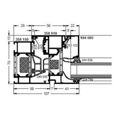
◘ dokazana termoizolacija sa osnovnom dubinom 70mm
◘ toplotna izolacija profila:
Uf = 1,6 W/m2K
◘ Dimenzije: ugradbena dubina okvira 70mm, krilo 80mm.
◘ Klasičan ravni dizajn profila sa mogućnošću ugradnje zaobljenih staklodržača.
SI (super insulation) profili
Boje
◘ Svu aluminijumsku stolariju moguće je dobiti u svim RAL bojama, špricanim bojama, te raznim imitacijama drveta.
Održavanje
◘ Održavanje je jednostavno i lako zbog izrazito glatkih površina i postojanosti materijala i boje.
Okov
◘ Originalni Schüco skriveni okov dozvoljava velike dimenzije krila i transparentnu arhitekturu.
Izolaciona svojstva
◘ Toplotna izolacija profila: Uf = 1,6 W/m2K.