HI (high insulation) profili odgovaraju najstrožijim
zakonima o uštedi energije. Zahvaljujući inovativnim prekinutim toplotnim mostovima sa spužvom i višekomornoj središnjoj brtvi velikih
dimenzija, ispunjava najviše zahtjeve u pogledu toplotne zaštite s koeficijentom prolaska toplote
kroz profil od samo Uf=1,6 W/m2K. Prikladan je za ugradnju u stambene objekte.
Detalji
◘ ispunjava složene uslove za maksimalnu toplotnu izolaciju održive arhitekture
◘ odlična toplotna izolacija postignuta korištenjem AWS modula
◘ zadovoljava najviše arhitektonske zahtjeve sa osnovnom dubinom od samo 90 mm
◘ u kombinaciji sa skrivenim Schuco AvanTec profilom
◘ transparentni formati do 160 kg
◘ može se realizovati i u kombinaciji sa Schuco TipTronic
◘ omogućava velike uštede energije u objektima
◘ dokazana termoizolacija sa osnovnom dubinom 90mm
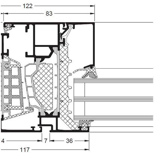
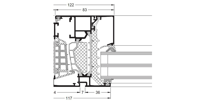
◘ toplotna izolacija profila: Uf = 1,0 W/m2K (prednja širina 117 mm).
◘ Dimenzije: ugradbena dubina okvira 90mm
◘ Klasičan ravni dizajn profila sa mogućnošću ugradnje zaobljenih staklodržača.
HI (high insulation) profili
Boje
◘ Svu aluminijumsku stolariju moguće je dobiti u svim RAL bojama, špricanim bojama, te raznim imitacijama drveta.
Održavanje
◘ Održavanje je jednostavno i lako zbog izrazito glatkih površina i postojanosti materijala i boje.
Okov
◘ Originalni Schüco skriveni okov dozvoljava velike dimenzije krila i transparentnu arhitekturu.
Izolaciona svojstva
◘ Toplotna izolacija profila: Uf = 1,0 W/m2K, prednja širina 117 mm