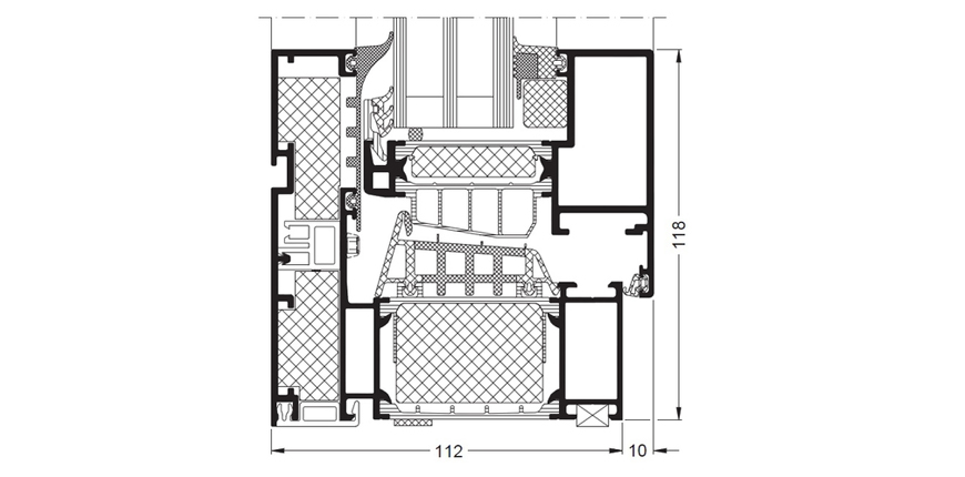
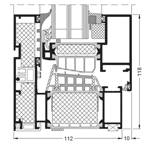
Schüco prozor AWS 112 IC (Insulation Cover) bio je prvi aluminijumski prozor u svijetu s uskim licem širine 120 mm koja zadovoljava stroge kriterijume certifikata za pasivne kuće i čije površine profila mogu takođe biti obložene poslije valjanja. Ona kombinuje tri značajne koristi u jednom sustavu: dokazane prednosti aluminijumskih prozora, odlične toplotne izolacije i uskim profilima za maksimalnu transparentnost stakla, što traže arhitekte.
Certifikovani sistem aluminijumskih prozora za pasivne kuće za najzahtjevnije uslove toplotne izolacije
Energija
◘ Uf-vrijednost = 0,8 W / (m²K) širina lica 120 mm: odlična toplotna izolacija za aluminijumske prozore u skladu sa standardom certifikovanja pasivnih kuća
◘ UW value = 0,75 W / (m²K) za cijeli aluminijumski prozor: može se postići s trostrukim ostakljenjem s Ug vrijednosti od 0.6 W / (m²K) i plastičnim distancerima
◘ izolovani fiksirani poklopac profila bez termičkog premošćivanja za optimizovanu toplotnu izolaciju
Dizajn
◘ Novi dizajn okvira oduška se temelji na blok dizajnu: postizanje uskog lica širine u kombinaciji s velikim površinama stakla
Automatika
◘ Schüco tiptronic se može koristiti za motorne okove
Sigurnost
◘ Protuprovalna zaštita do RC 3