Vrhunski originalni Schüco skriveni okov s inox dijelovima dozvoljava velike dimenzije krila itransparentnu arhitekturu.
Mogućnost ugradnje Schüco Tip tronic uređaja za automatsko otvaranje prozora.
Ovaj sistem svoju primjenu nalazi tamo gdje je potrebna jednostavna i ekonomski isplativa visokokvalitetna gradnja.
Standard
DIN EN ISO 10077-2
DIN EN 20140
DIN V ENV 1627
DIN EN 12208
DIN EN 12207
DIN EN 12210
Vrijednost
Uf=2.6 W/m2K
do SSK5
WK3
Klasa 9a
Klasa 4
Klasa C5/B5
Test
Termička izolacija
Smanjenje buke
Protuprovalnost
Vodonepropustivost
Permeabilnost zraka
Otpornost na vjetar
Detalji
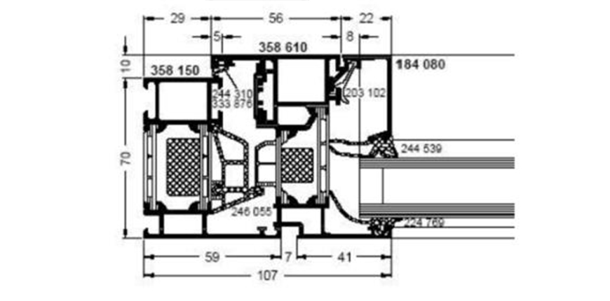
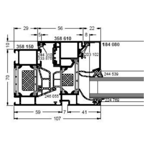
◘ Dokazana termoizolacija sa osnovnom dubinom od 60mm
◘ Uf vrijednost od 2.6 W/m²K sa 60 mm dubinom ugradnje i 110 mm širine
◘ Dimenzije: ugradbena dubina okvira 60mm, krilo 70mm.
◘ Klasičan ravni dizajn profila sa mogućnošću ugradnje zaobljenih staklodržača.
Izradom vrhunska, a ekonomski najisplativija serija
Boje
◘ Svu aluminijumsku stolariju moguće je dobiti u svim RAL bojama, špricanim bojama, te raznim imitacijama drveta.
Održavanje
◘ Održavanje je jednostavno i lako zbog izrazito glatkih površina i postojanosti materijala i boje.
Okov
◘ Originalni Schüco skriveni okov dozvoljava velike dimenzije krila i transparentnu arhitekturu.
Izolaciona svojstva
◘ Toplotna izolacija profila: Uf = 2,6 W/m2K.